お知らせ
Information
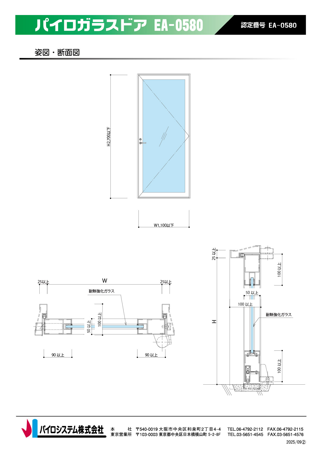
耐熱強化ガラス入り片開き框扉
パイロガラスドア EA-0580 新商品について
この度、弊社は国土交通大臣が定める特定防火設備の性能評価試験に合格しましたので報告いたします。
認定番号:EA-0580
製品名:パイロガラスドア EA-0580
本製品は、従来認定品パイロガラスドア(耐熱強化ガラス入り片開き框扉)と同様に耐熱強化ガラスを採用し、新たな機能を追加して誕生した新認定品です。
- 防火性能と耐衝撃性能を兼ね備えた耐熱強化ガラス(パイロクリア)を使用。
- 最大寸法 W1,100xH2,700
- ドアを軽量化
- 扉本体の框部分には押縁がなく、シンプルな扉を実現
- コンシールドタイプのドアクローザーも選択可能
- SAT仕様
- ドアボトムも選択可能
- 飛散防止フィルム貼りも選択可能
- 枠表面仕上げは、塗装・ステンレスが可能

