お知らせ
Information
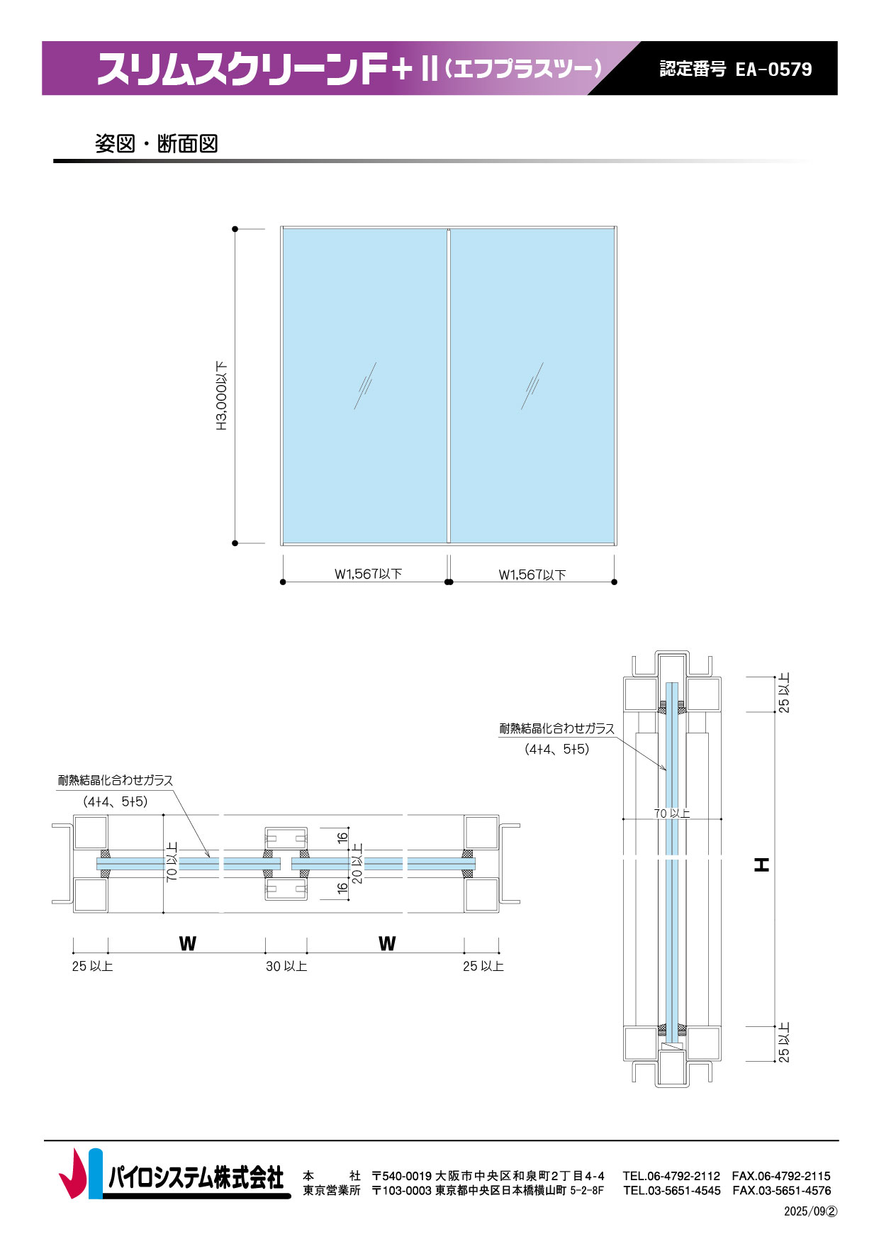
耐熱結晶化合わせガラス入りはめ殺し窓
スリムスクリーンF+Ⅱ(エフプラスツー)2連窓 新商品について
この度、弊社は国土交通大臣が定める特定防火設備の性能評価試験に合格しましたので報告いたします。
認定番号:EA-0579
製品名:スリムスクリーンF+Ⅱ(エフプラスツー)2連窓
本製品は、日本電気硝子(株)が特殊樹脂フィルムを新しくし2024年4月に販売開始した耐熱結晶化合わせガラス「ファイアライトプラス・ネオ」を使用したものです。
- 衝撃安全性を有した耐熱結晶化合わせガラス(日本電気硝子製ファイアライトプラス・ネオ)を採用
- 方立(連結部)の最小見付寸法は30mm※開口部寸法により方立サイズは変更となります。
- 最大ガラス見付寸法 W1,567 x H3,000
- 上下及び縦枠に押縁がなく、天井や壁とのチリを最小限にすることが可能
- 枠表面仕上げは、塗装・ステンレスが可能
- 規格品、角出し角パイプを使用することで、シャープな枠構成が可能
- 旧認定 EA-0539と同じ枠仕様が可能
